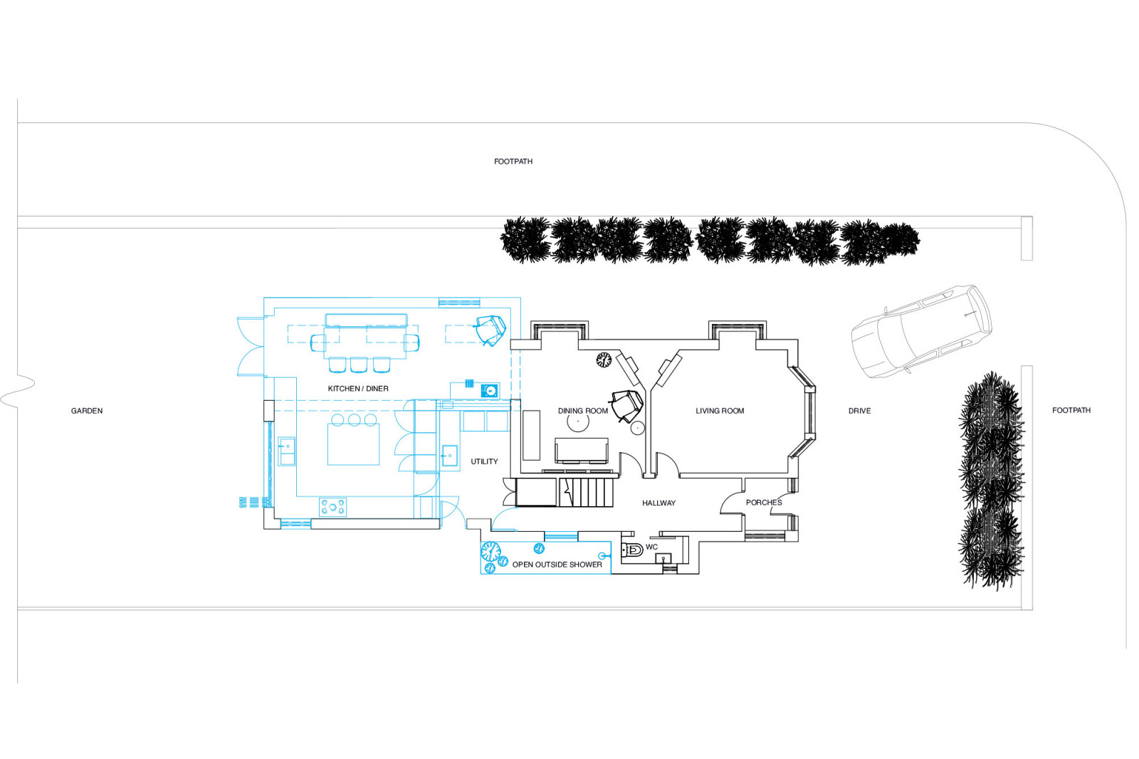
Residential design and planning approval drawings for a four bedroom property on the Kent coast.
The design included adding a two storey side extension, master bedroom, en-suite, kitchen-diner & utility room to create a more functional family home.
Residential design and planning approval drawings for a four bedroom property on the Kent coast.
The design included adding a two storey side extension, master bedroom, en-suite, kitchen-diner & utility room to create a more functional family home.
Broadstairs, Kent